Terrain À vendre

4570 Marchin
99 000 €
Vendu

    Terrain à bâtir à vendre à Marchin

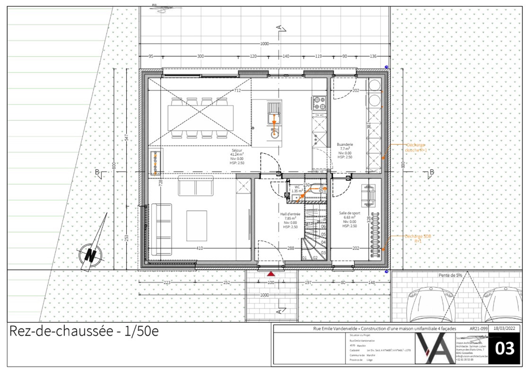
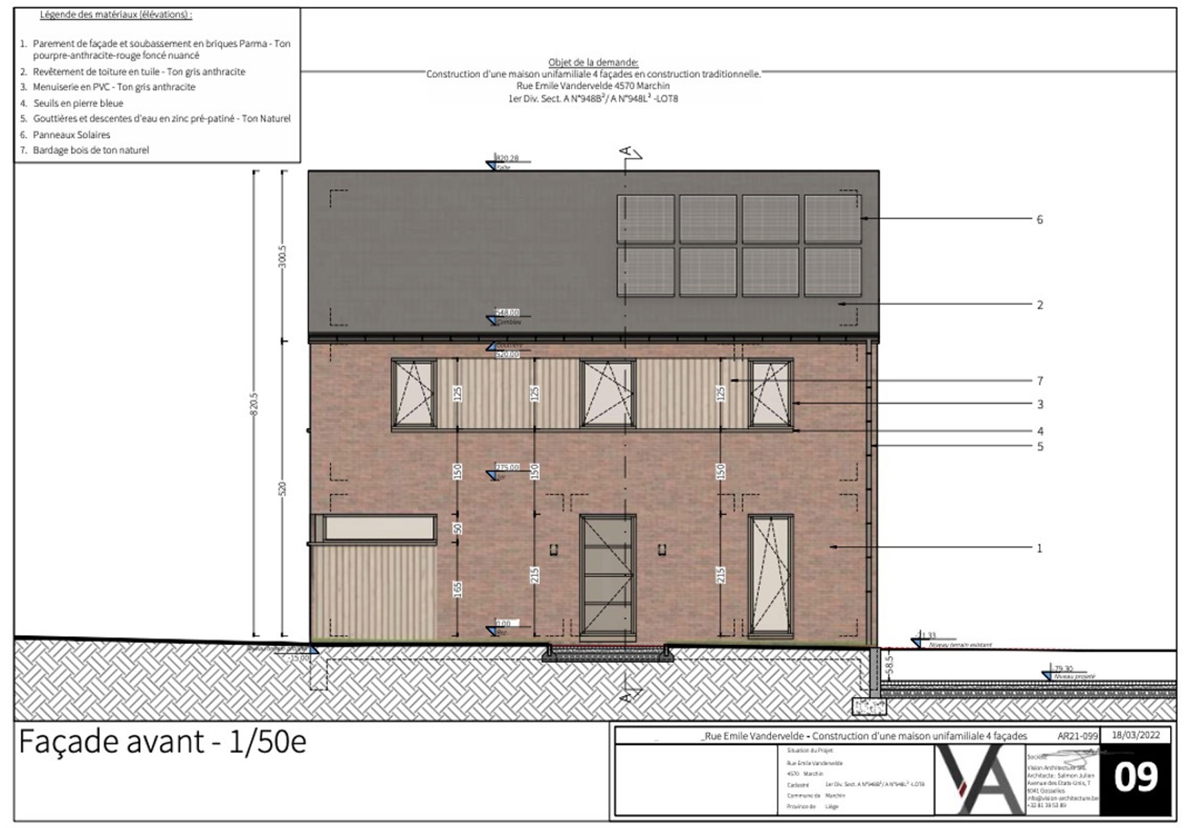
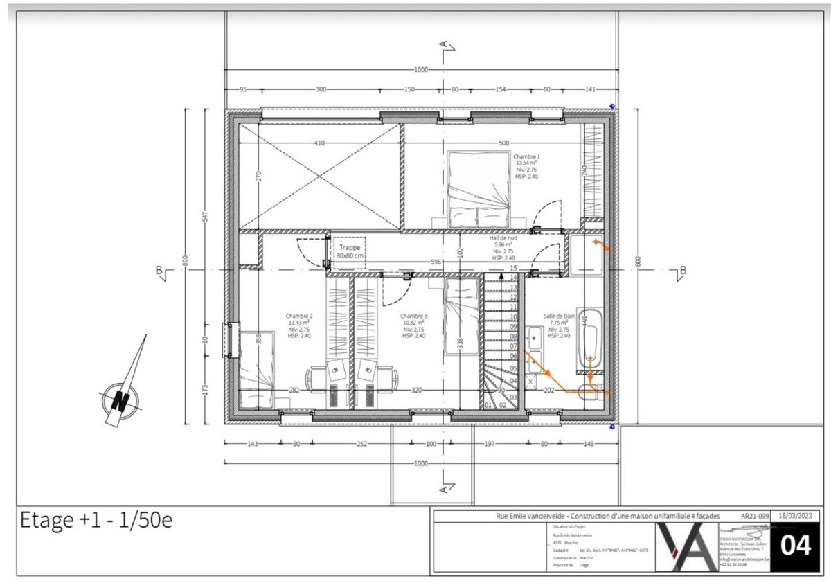
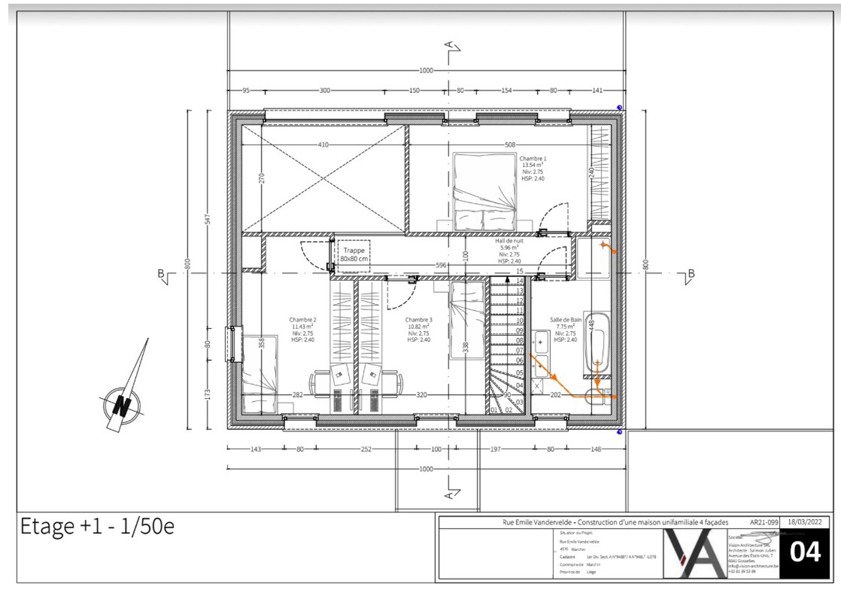
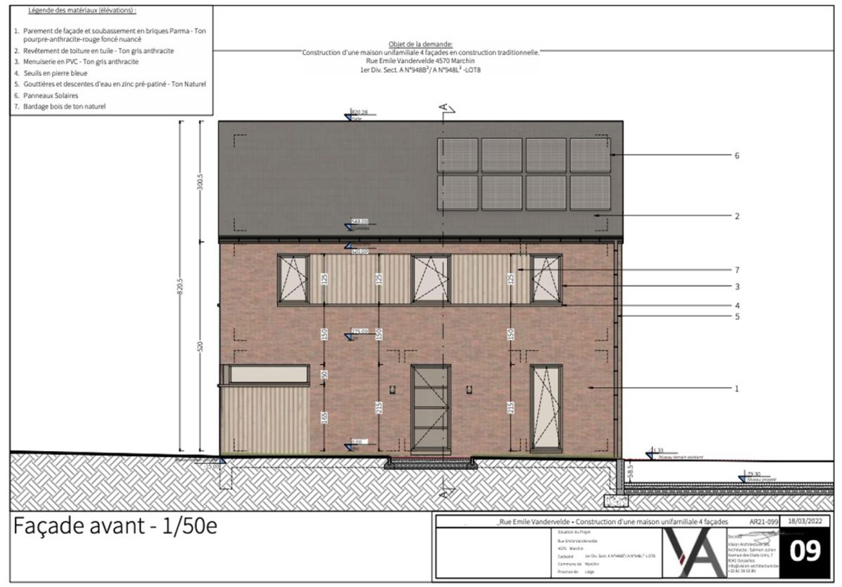
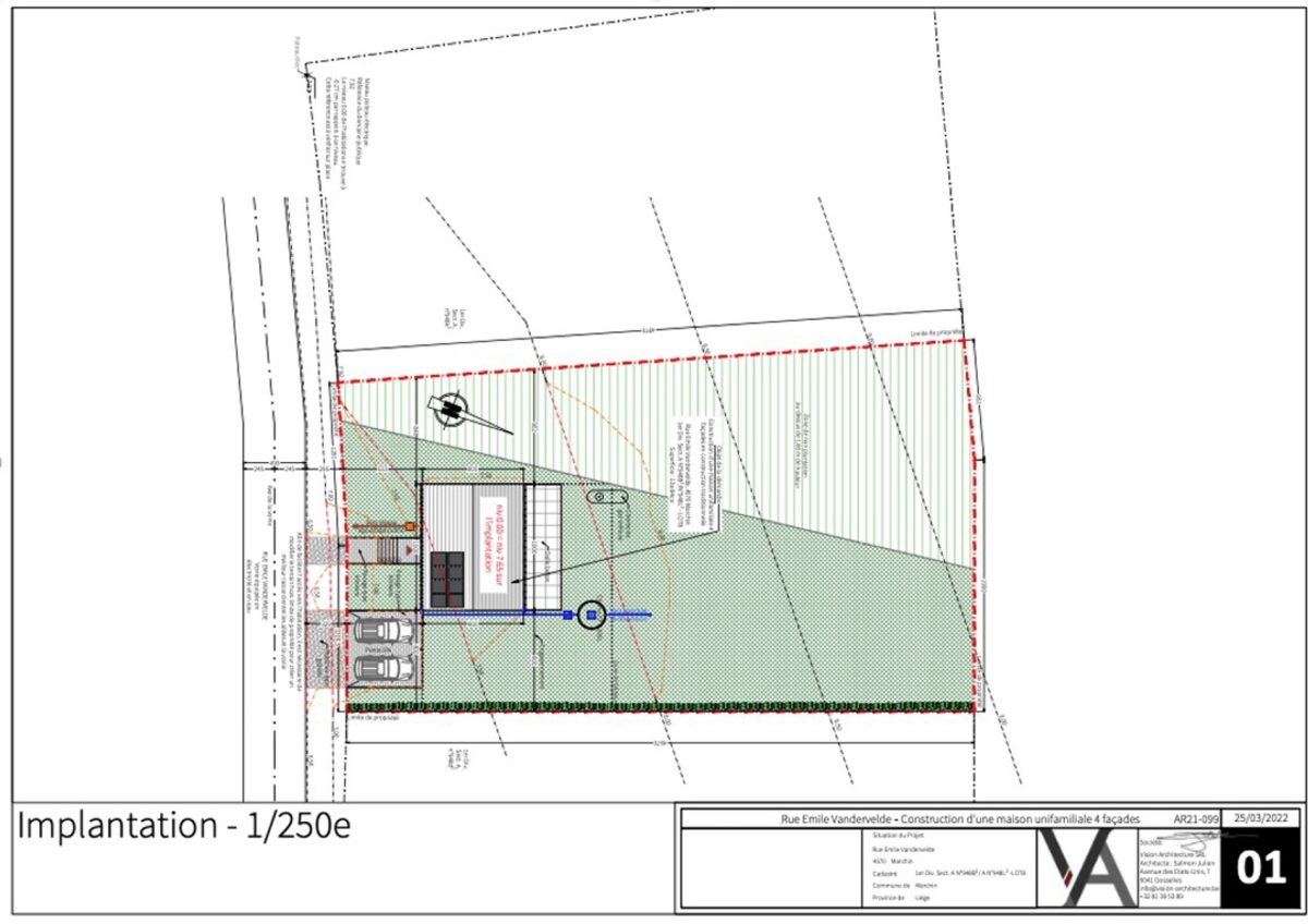
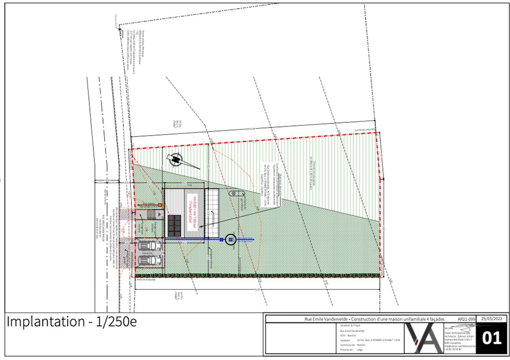
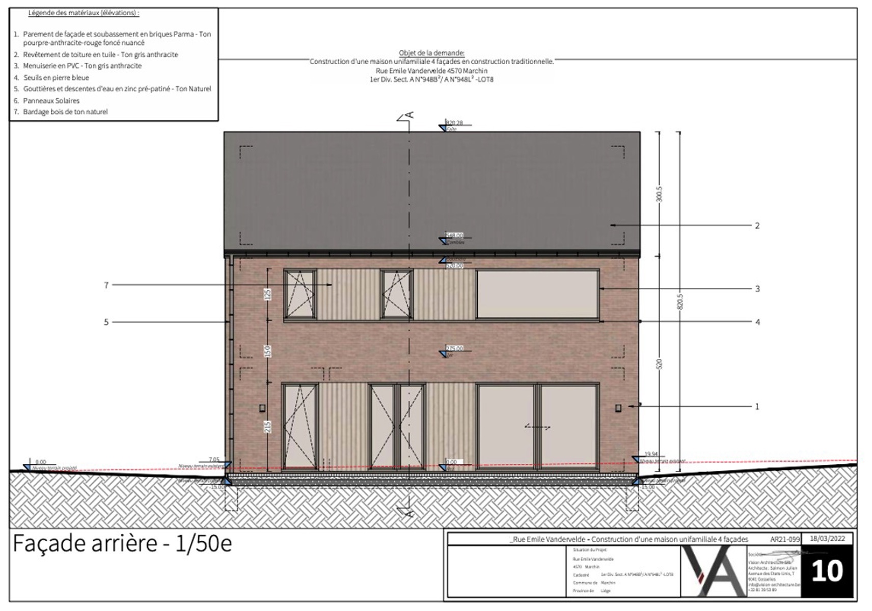
    La société immobilière Foncium vous propose un superbe terrain plat de 1320 m² avec permis obtenu pour la construction d’une villa quatre façades. Le terrain est situé à la campagne, sur les hauteurs de Marchin. Le jardin à l’arrière a une vue dégagée sur les champs. Le prix comprend l’obtention du permis d’urbanisme. Les plans peuvent être adapté moyennant autorisations urbanistiques. Libre d’architecte et de constructeur

    Contactez-nous : 04/277.30.40

    Sous réserve d’acceptation du propriétaire, annonce non contractuelle. Nous offrons l’estimation de votre bien !

    immobilière gestion locative syndic de copropriété liège-Foncium

    Vous souhaitez visiter ce bien ?

    Données générales

    • Prix 99 000 €
    • Ville Marchin
    • Catégorie Terrain
    • Status de la transaction Vendu
    • Revenu cadastral 0 €

    Configurations

    • Superficie terrain 1.320

    Données énergétiques

    Localisation

    Rue Emile Vandervelde 4570 Marchin

    Demandez une visite